Monday, July 1, 2019

SOLD: Four Door Apartment in Brgy. Dau, Mabalacat City, Pampanga


We recently added this in our property listing in our resale properties which would love to share to our prospective clients and investors who would like to own an income generating property with a potential growth area housing for those working in Clark Freeport Zone which is a few minutes away from Bayanihan Park Terminal and SM City Clark. Just a few minutes away from Mabalacat City Transport Terminal (Dau Bus Terminal), S & R Shopping Center and other busineses in this high growth area of Mabalacat City.

Brgy Dau has overshadowed the whole Mabalacat City from business and commercial establishments with its very accessible location from Clark Freeport Zone and Angeles City which is a one of the
growth area north of Pampanga. With these developments, the need for housing has blossomed over the years because relative closeness to those working in Clark Freeport Zone which is a few minutes away from Bayanihan Park Terminal and SM City Clark. Just a few minutes away from Mabalacat City Transport Terminal (Dau Bus Terminal), S & R Shopping Center and other busineses in this high growth area of Mabalacat City.






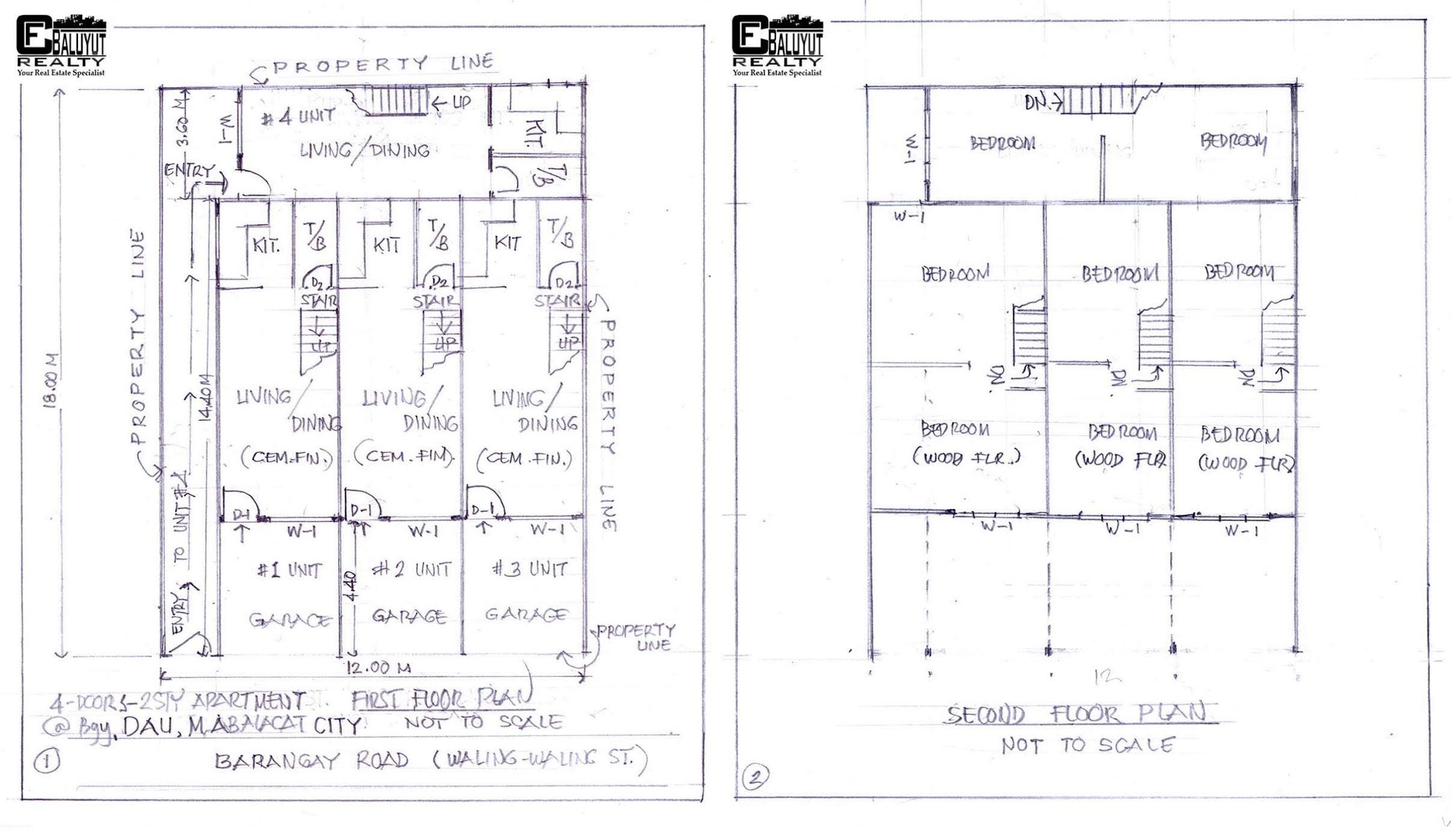
Property Details:

Four Units - Fully tenanted
Lot Area: 216 square meters
Total Floor Area: 357.60 square meters
Clean Title (No Encumbrances / Lis Pendens)
Updated Real Estate Property Tax (Amilyar) as of May 2019
Distance to SM Clark / Bayanihan Park Terminal: 15 minutes away
Distance to McArthur Highway: 10 - 12 minutes away
Distance to Dau Bus Terminal: 5 - 7 minutes
Distance to Mabacalat National High School: - 3-5 minutes away
Payment Option: CASH or Bank Financing
Price: P 3,300,000.00 (Price is negotiable) THIS PROPERTY IS SOLD as of 02 Feb 2020!


For more details visit our contact page at https://www.cfbaluyutrealty.com/p/contact-us.html



Copyright 2004 - 2019 C. F. Baluyut Realty | Real Estate in Pampanga, Philippines. All Rights Reserved.